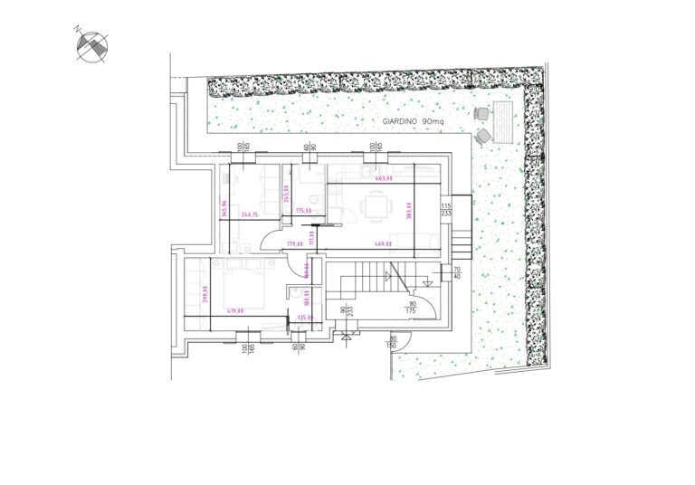
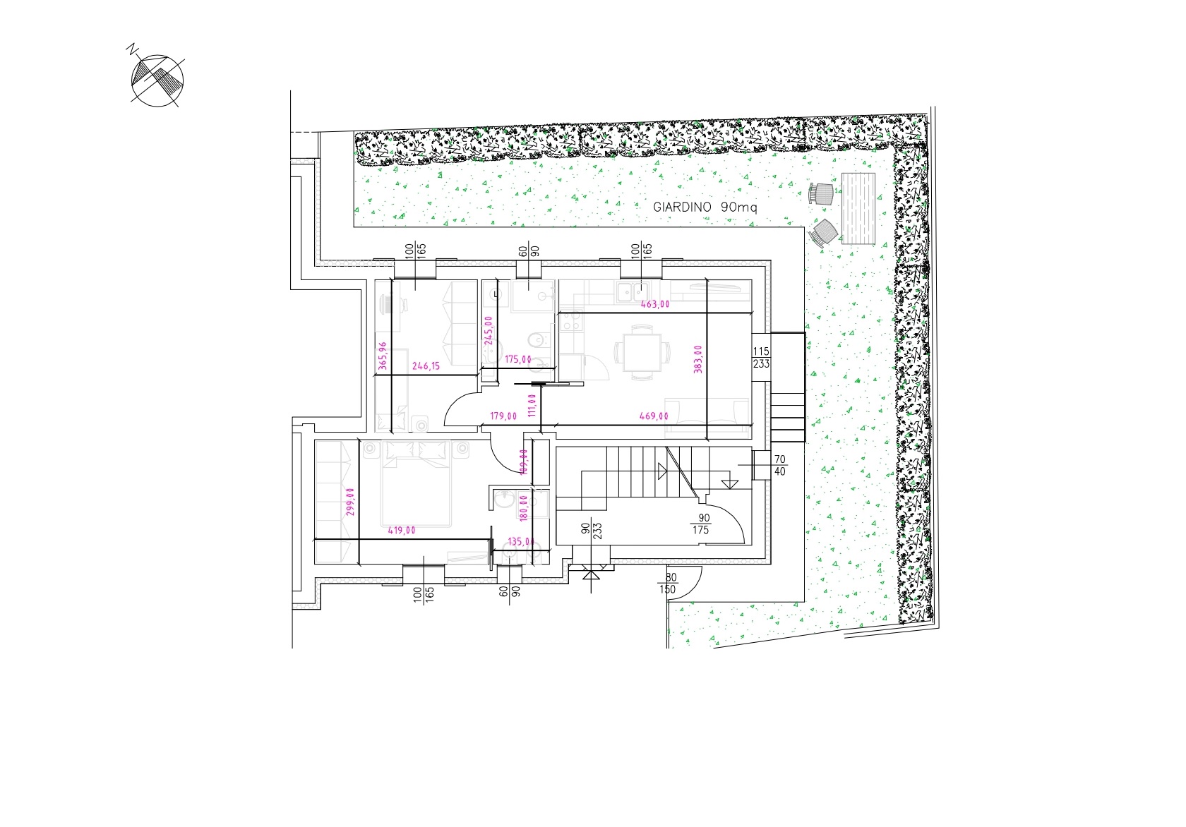
Via Bombelli, in zona dotata di tutti i servizi, compreso la nuova linea del tram ed ampie aree verdi, proponiamo una soluzione composta da ingresso, zona giorno con cucina a vista che gode di molta luminosità, una camera da letto matrimoniale, una camera singola e due bagni, oltre ad avere un ampio giardino. Compreso nel prezzo c’è anche un posto auto.
Tutti gli immobili del complesso sono realizzati in A4, massima classe energetica disponibile, con impianti tecnologicamente all’avanguardia, con riscaldamento a pavimento, isolamento acustico e termico.
Rif. OT31017 – www.kapitalre.it
KapitalRE vi offre consulenza a 360 gradi affinché tutti i nostri clienti possano Sentirsi a Casa in una scelta così importante ed emozionante.
Chiedi al referente che ti accompagnerà in visita tutte le informazioni sui nostri servizi: gestione completa delle permute, consulenza finanziaria, ristrutturazioni chiavi in mano, progettazione di interni, valutazioni gratuite, pratiche edilizie, traslochi…
La geolocalizzazione ed i dati indicati nell’annuncio vanno considerati quali indicativi e non costituiscono elemento contrattuale..

























