Appartamento 6 – Primo Piano con Loggia – Borgonuovo C25 – Via Cartiera
In un contesto residenziale moderno e silenzioso nasce Borgonuovo C25, un nuovo complesso di 25 appartamenti in classe energetica A, pensato per chi desidera abitare in un ambiente efficiente, elegante e vicino a tutti i servizi.
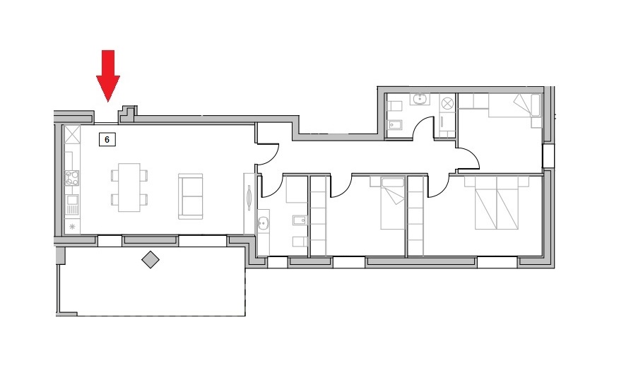
L’appartamento 6, un quadrilocale al primo piano con ampia loggia, offre spazi generosi e ben distribuiti: soggiorno con angolo cottura affacciato sull’esterno, tre camere da letto e due bagni.
Le finiture sono di qualità, gres porcellanato o effetto legno, porte interne bianche, battiscopa coordinati e portoncino blindato classe 3, mentre il comfort abitativo è garantito da riscaldamento a pavimento, predisposizione per climatizzazione, infissi in PVC e oscuranti motorizzati.
L’impianto centralizzato con pompa di calore e fotovoltaico condominiale assicura consumi ridotti e un elevato risparmio energetico.
Detrazioni fiscali Sismabonus. Nessuna mediazione richiesta.
Garage e cantine da acquistare a parte, disponibili in diverse metrature.
Disponibili altre tipologie ai piani superiori con ampie logge e terrazzi panoramici.
Borgonuovo di Sasso Marconi, a pochi minuti da Casalecchio e Bologna, in posizione comoda alla stazione e all’ingresso autostradale.
Contattaci per maggiori informazioni o per fissare un appuntamento in cantiere.
Scopri la tua nuova casa a Borgonuovo C25 e vivi il comfort di una costruzione di ultima generazione.
Rif. OT31042 – www.kapitalre.it
KapitalRE vi offre consulenza a 360 gradi affinché tutti i nostri clienti possano Sentirsi a Casa in una scelta così importante ed emozionante.
Chiedi al referente che ti accompagnerà in visita tutte le informazioni sui nostri servizi: gestione completa delle permute, consulenza finanziaria, ristrutturazioni chiavi in mano, progettazione di interni, valutazioni gratuite, pratiche edilizie, traslochi…
La geolocalizzazione ed i dati indicati nell’annuncio vanno considerati quali indicativi e non costituiscono elemento contrattuale..













